Bungalows neufs avec vue sur la mer à La Mata, Torrevieja
Situation privilégiée à 300 mètres de la plage
Ce nouveau projet exclusif est situé à La Mata, Torrevieja, l'une des zones les plus recherchées de la Costa Blanca. À seulement 300 mètres de la plage, ce projet offre un cadre naturel exceptionnel avec des vues panoramiques sur la mer et un accès facile à toutes les commodités essentielles.
La Mata est un quartier dynamique au charme particulier, entouré de promenades, de restaurants, de cafés et de supermarchés, ce qui en fait la destination idéale pour vivre toute l'année ou pour profiter d'une résidence secondaire au bord de la mer.
Design moderne et efficacité énergétique
Ce projet se distingue par son architecture méditerranéenne élégante et avant-gardiste. Conçu selon la norme Passivhaus, il garantit une construction durable qui offre un confort thermique et une efficacité énergétique maximum, réduisant ainsi la consommation et l'impact sur l'environnement.
Les maisons présentent des finitions de haute qualité, des pièces spacieuses et une lumière naturelle abondante, ce qui permet d'atteindre un équilibre parfait entre le design et la fonctionnalité.
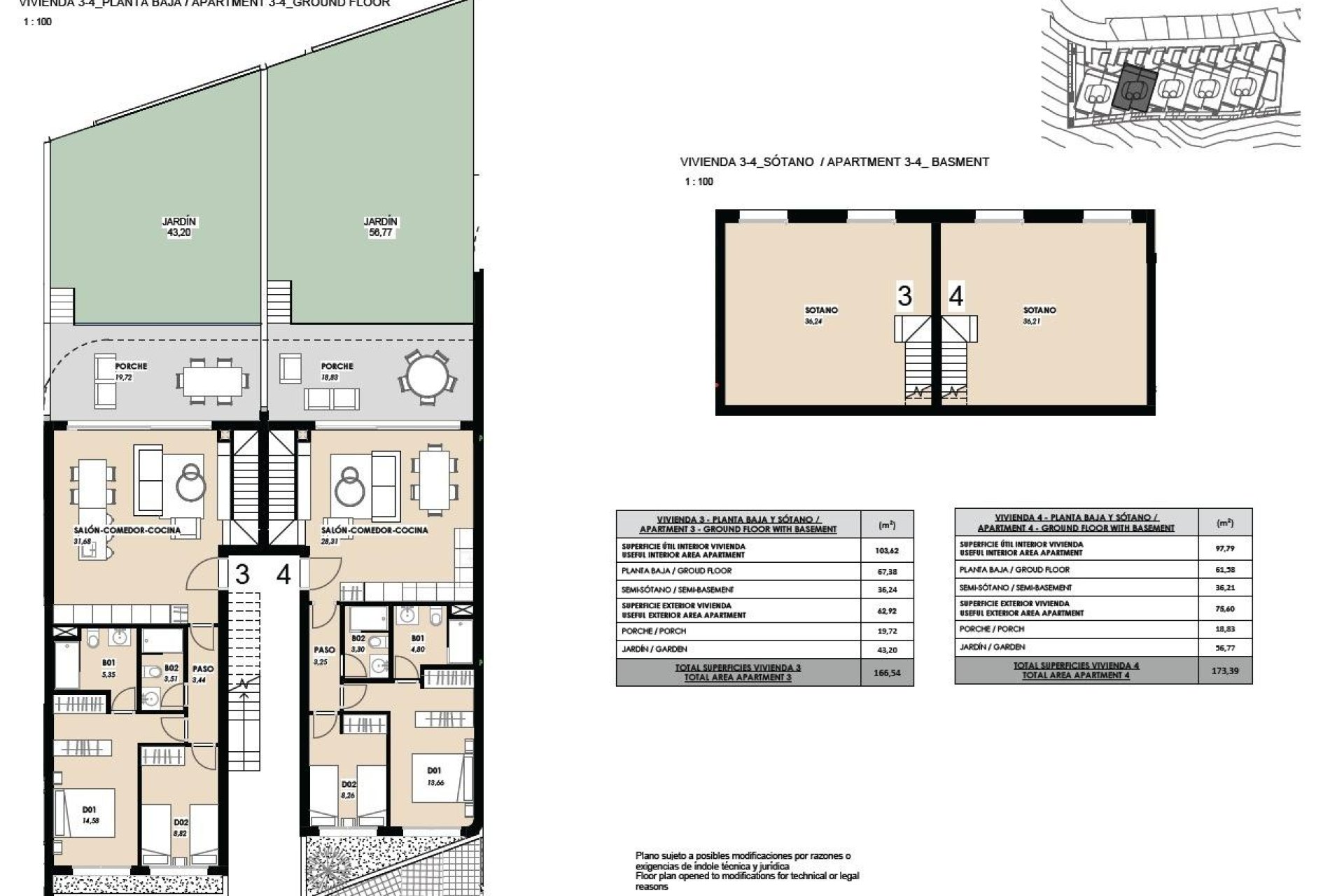
Des options de logement pour tous les styles de vie
Les appartements au rez-de-chaussée disposent d'un grand jardin privé avec vue sur la mer et suffisamment d'espace pour une piscine privée. Ils comprennent également un demi sous-sol avec la possibilité d'ajouter des chambres supplémentaires.
Appartements au dernier étage avec un grand balcon, un solarium privé et des vues spectaculaires sur la mer, parfaits pour profiter du soleil méditerranéen.
Espaces communs exclusifs
Ce projet offre des espaces conçus pour le confort et la détente :
Piscine commune à débordement, idéale pour se rafraîchir avec des vues panoramiques.
Parking souterrain inclus dans chaque propriété.
Proximité des points d'intérêt
Plage de La Mata - 300 m.
Centre ville de Torrevieja - 6 km.
Parque Natural de las Lagunas de La Mata-Torrevieja - 2 km.
Terrain de golf La Marquesa - 15 km.
Aéroport d'Alicante - 40 km (environ 40 min).
Aéroport de Murcie - 65 km (environ 1 heure).
Votre maison sur la Costa Blanca vous attend
Si vous cherchez un appartement de luxe avec vue sur la mer, dans un endroit privilégié et avec toutes les commodités, cette résidence est votre meilleure option. Contactez-nous dès aujourd'hui pour plus d'informations et pour organiser une visite.
678