Villas de style moderne à La Romana, Alicante
Maisons neuves exclusives dans un charmant village espagnol
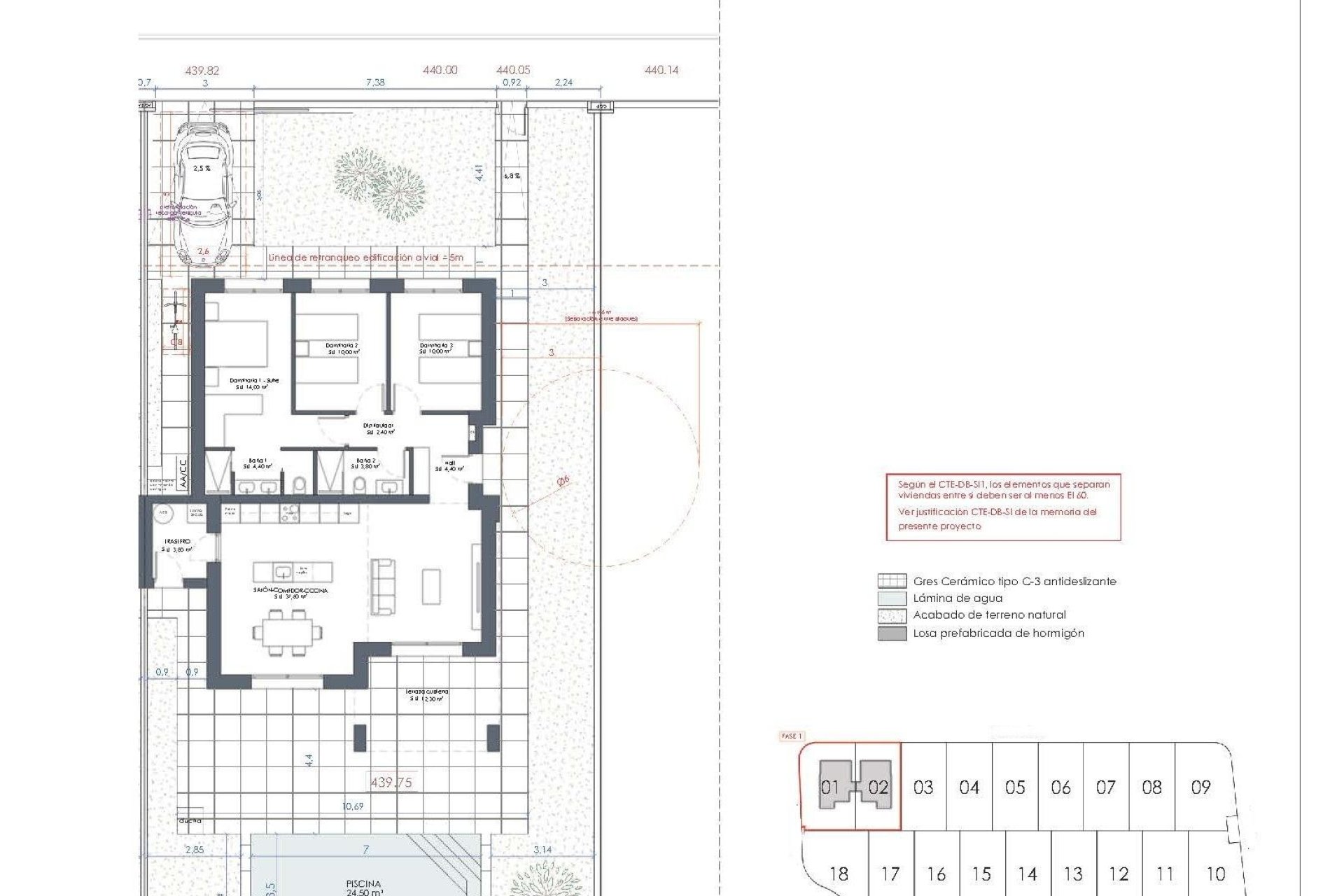
Ces villas neuves de style moderne à La Romana sont conçues pour ceux qui recherchent la tranquillité, le confort et le mode de vie espagnol authentique. Situées sur des terrains de 370 m² dans un quartier résidentiel à la périphérie du village, les maisons se trouvent à quelques pas du centre-ville, où vous pourrez profiter de restaurants traditionnels, de boutiques et de tous les services quotidiens. Entourée de vignobles, d'amandiers et de paysages montagneux, La Romana offre un cadre rural unique tout en étant à seulement 30 minutes de la côte.
Un design spacieux avec tout le confort moderne
Chaque villa offre 127 m² de surface habitable répartis en 3 chambres et 2 salles de bains, dont une suite parentale avec salle de bains attenante. Le salon et la salle à manger ouverts s'intègrent parfaitement à la cuisine équipée et donnent directement accès à la terrasse et à la piscine privée. Les autres caractéristiques comprennent un débarras/buanderie et un parking privé dans la parcelle. Pour ceux qui souhaitent disposer d'un espace extérieur supplémentaire, il est possible d'ajouter un solarium sur le toit moyennant un coût supplémentaire.
Caractéristiques haut de gamme incluses
Ces villas sont construites avec des finitions de qualité et sont entièrement équipées :
Piscine privée de 6 x 3,5 m
Climatisation avec pompe à chaleur (installation et unité incluses)
Cuisine moderne avec armoires blanches et plans de travail en granit
Éclairage LED dans toute la maison et sur la véranda
Double vitrage, portes intérieures blanches et armoires encastrées
La livraison est prévue 14 mois après la réservation, ce qui garantit une maison neuve et personnalisée.
Emplacement idéal dans la campagne d'Alicante
La Romana est un village espagnol traditionnel situé à l'intérieur des terres d'Alicante, connu pour sa communauté accueillante et son environnement naturel. Son emplacement offre un équilibre parfait entre tranquillité et accessibilité :
Aspe – 8 km
Elche – 18 km
Aéroport d'Alicante – 35 km
Plages de la Costa Blanca – 30 km
Parcours de golf (Font del Llop & Alenda) – 20 km
Ville d'Alicante – 32 km
Votre style de vie méditerranéen vous attend
Si vous recherchez un environnement paisible entouré de montagnes, de vignobles et de charmantes villes espagnoles, tout en étant proche de la côte méditerranéenne, ces villas à La Romana sont le choix idéal. Contactez-nous dès aujourd'hui pour obtenir plus d'informations et réserver votre nouvelle maison à Alicante.