Nieuwbouw gelijkvloerse villa's met privé zwembad in Torrevieja
Moderne villa's in de exclusieve wijk Los Balcones
Ontdek deze prachtige nieuwbouw villa's, perfect gelegen in de Los Balcones urbanisatie van Torrevieja. Ontworpen voor comfort en elegantie, deze single-verhaal huizen bieden ruime interieurs, hoogwaardige afwerking, en een prive zwembad, waardoor ze de perfecte keuze voor diegenen die op zoek zijn naar een moderne mediterrane levensstijl.
Gelegen in een rustige en goed verbonden omgeving, zijn deze villa's omgeven door een breed scala aan diensten, waaronder restaurants, bars, winkelcentra en gezondheidszorg, zorgen voor gemak en een hoge kwaliteit van leven.
Ruim en functioneel ontwerp
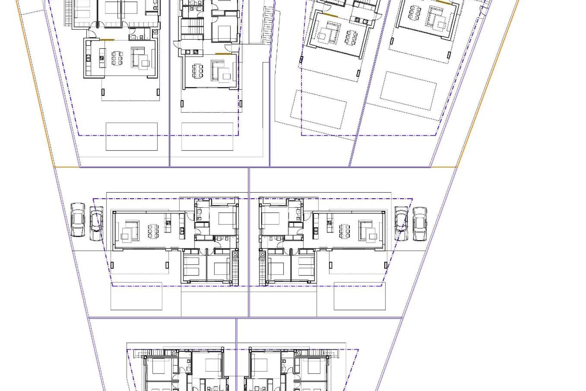
Elk van de 8 onafhankelijke villa's is gebouwd op een royaal perceel van meer dan 400 m², waardoor er voldoende buitenruimte is. De woningen beschikken over:
3 ruime slaapkamers en 2 volledig uitgeruste badkamers.
Een grote open woon- en eetkamer, ontworpen voor natuurlijk licht en comfort.
Een moderne open keuken, naadloos geïntegreerd in de leefruimte.
Privé zwembad, perfect om af te koelen en te entertainen.
Parkeerplaats voor twee auto's op het perceel.
Prive solarium met open uitzicht, ideaal om te zonnebaden en te ontspannen.
Optionele kelder beschikbaar voor extra woon- of opslagruimte (tegen meerprijs).
Hoogwaardige functies en afwerkingen
Deze villa's zijn gebouwd met eersteklas materialen en ontworpen voor een luxe levensstijl:
Vloerverwarming in de badkamers, voor comfort het hele jaar door.
Inclusief verlichtingspakket voor meer sfeer en functionaliteit.
Een reeks aanpassingsopties, zodat kopers de afwerking aan hun voorkeuren kunnen aanpassen.
Toplocatie in de buurt van stranden en diensten
Los Balcones is een zeer gewilde woonwijk van Torrevieja, bekend om zijn rustige omgeving en toch dicht bij essentiële voorzieningen. Deze villa's genieten van een uitstekende verbinding met belangrijke locaties:
Stranden van Torrevieja - Op slechts 3 km afstand.
Internationale luchthaven van Alicante - 40 km (ongeveer 35 minuten rijden).
Winkelcentra (La Zenia Boulevard, Habaneras) - 10-15 minuten met de auto.
Golfbanen (Villamartín, Las Ramblas, Campoamor) - 15-20 minuten met de auto.
Torrevieja centrum - 3 km.
Een uitstekende investering en droomhuis
Met hun toplocatie, modern design, en premium afwerking, deze villa's bieden een ongelooflijke kans voor investeringen, vakantie of permanente bewoning aan de Costa Blanca.
Neem vandaag nog contact met ons op voor meer informatie of om een bezichtiging te plannen!