Nieuwbouwwoningen met privézwembad in Los Alcázares, Costa Cálida
Exclusieve moderne villa's op slechts 700 meter van de zee
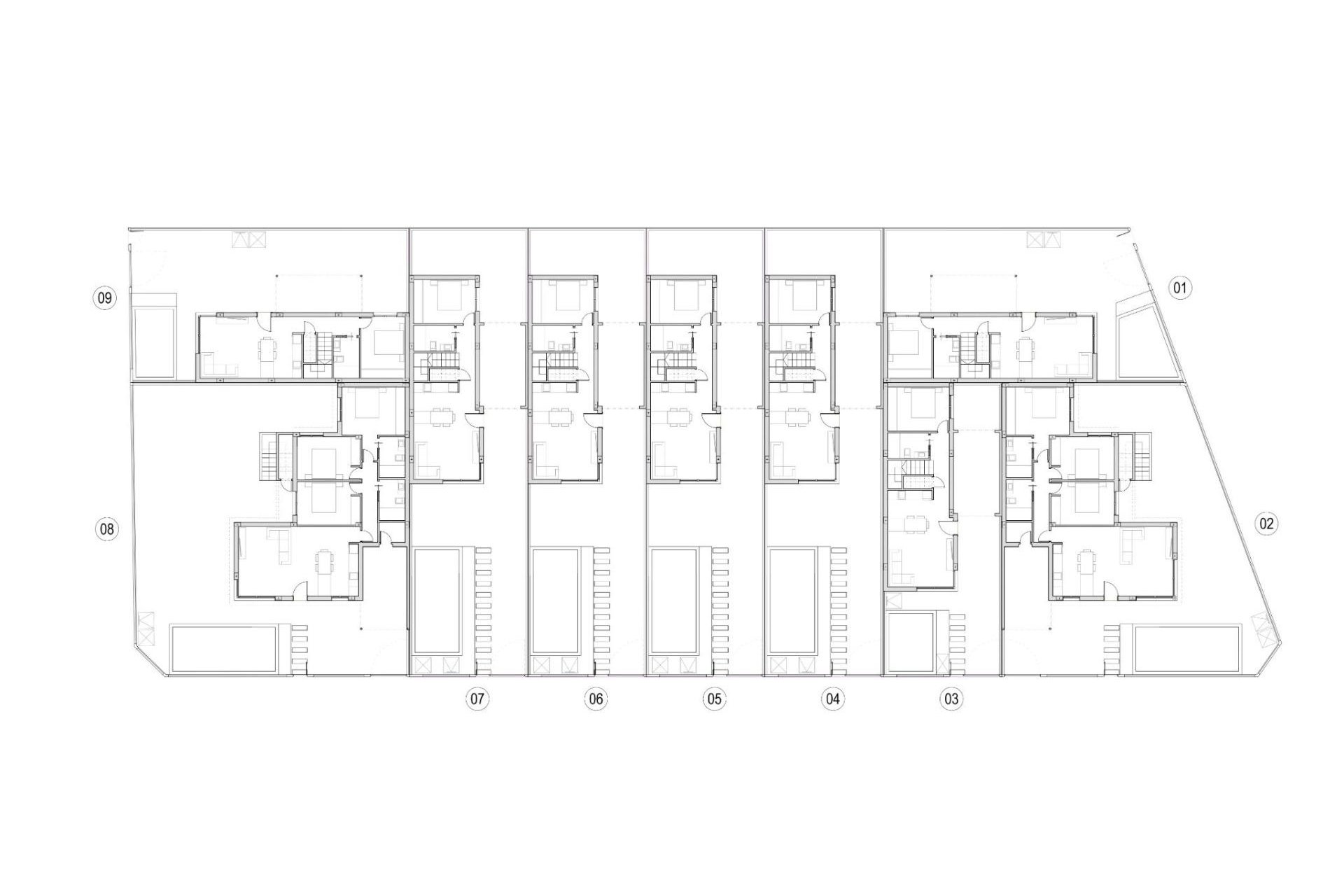
Ontdek deze exclusieve woonwijk met 9 nieuwbouwwoningen in Los Alcázares, een van de meest gewilde plaatsen aan de Costa Cálida vanwege de nabijheid van de zee, de ontspannen sfeer en het uitstekende aanbod aan voorzieningen. Elke villa heeft een privézwembad, een aparte overdekte garage en is ontworpen om comfort, functionaliteit en een eigentijdse stijl te bieden.
Duplexontwerp met solarium en ideale ligging
De woningen zijn verdeeld over twee verdiepingen en beschikken over 3 slaapkamers en 2 badkamers, een volledig uitgeruste open keuken, een ruime woonkamer, een terras en een tuin op de begane grond, een terras op de eerste verdieping en een privé solarium op de overbouw met een zomerkeuken. Dankzij de verschillende oriëntaties kunt u het hele jaar door de hele dag van de zon genieten.
Hoogwaardige afwerking
Deze villa's zijn ontworpen met materialen van topkwaliteit en bieden:
Privézwembad met buitendouche
Keuken uitgerust met apparatuur: koelkast, oven, ingebouwde magnetron, keramische kookplaat, afzuigkap en ingebouwde vaatwasser
Inbouwkasten met lades
Complete badkamers met meubel, spiegel met verlichting en douchewanden
Voorbereiding voor airconditioning
Installatie van 2 zonnepanelen
Zomerkookplaats op het solarium
Overdekte parkeerplaats op het perceel
Onverslaanbare locatie aan de Costa Cálida
Deze woningen liggen op slechts 700 meter van de stranden van de Mar Menor en bieden u de mogelijkheid om te genieten van een unieke natuurlijke omgeving met rustig en warm water. Los Alcázares combineert een ontspannen levensstijl met alle voorzieningen binnen handbereik: supermarkten, restaurants, sportfaciliteiten en gezondheidscentra. Ideaal als permanente woning of als vakantiehuis.
Afstanden tot bezienswaardigheden
Strand van Mar Menor: 0,7 km
Golfbanen (Roda, La Serena, Mar Menor Golf): tussen 3 en 10 km
Internationale luchthaven van Murcia: 30 km
Cartagena: 22 km
Winkelcentrum Dos Mares: 13 km
Jachthaven van Los Alcázares: 2 km
Uw toevluchtsoord van zon en rust aan de Middellandse Zee
Deze villa's bieden de perfecte combinatie van modern design, privacy, comfort en een bevoorrechte ligging.
Neem vandaag nog contact met ons op en plan uw bezoek om uw volgende woning aan zee te ontdekken.