Moderne gelijkvloerse villa's met privézwembad en solarium in El Jimenado Murcia
Eigentijds mediterraan wonen met privacy en comfort
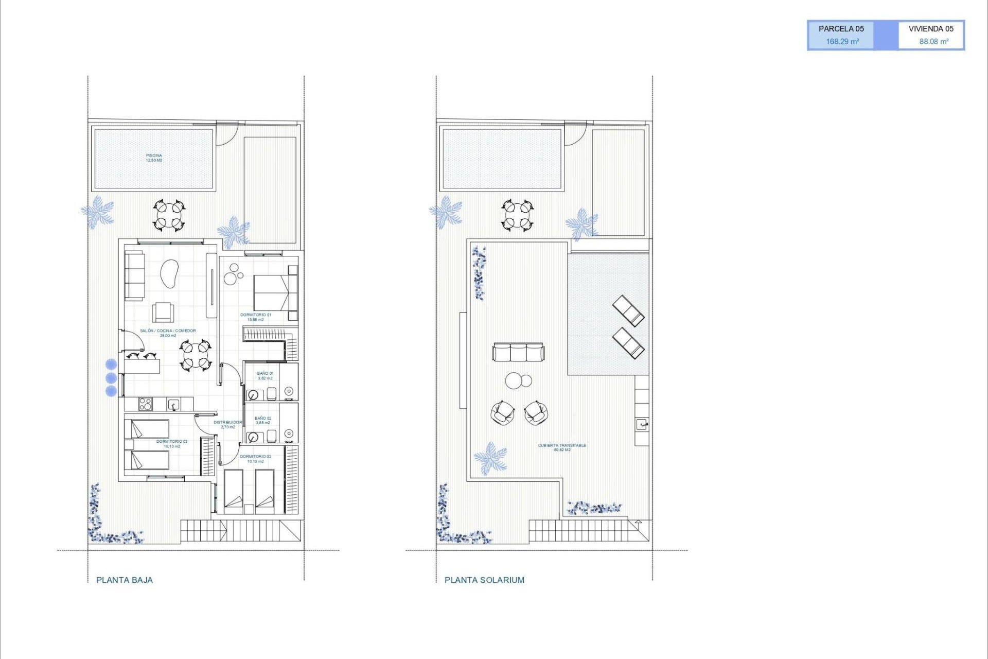
Dit exclusieve project van 6 onafhankelijke villa's is ontworpen om maximale privacy, comfort en buitenleven te bieden. Gelegen in El Jimenado, een rustige woonwijk die behoort tot Torrepacheco in de regio Murcia, combineren deze elegante gelijkvloerse woningen een modern design met de ontspannen mediterrane levensstijl. Elke villa staat op een eigen perceel met privétuin, zwembad, grote terrassen en parkeerplaats op het perceel, zodat u het hele jaar door kunt genieten van de zon en het buitenleven.
El Jimenado staat bekend om zijn rustige omgeving en is tegelijkertijd strategisch gelegen in de buurt van golfbanen, stranden en essentiële voorzieningen, waardoor het ideaal is voor zowel permanent wonen als vakantiegebruik.
Open ontwerp en hoogwaardige voorzieningen
De villa's zijn zorgvuldig ontworpen met een open indeling, waarbij de volledig uitgeruste keuken naadloos aansluit op de lichte woon- en eetkamer. Grote ramen verbinden de binnenruimtes met de terrassen en het zwembad, waardoor een natuurlijke overgang ontstaat tussen binnen- en buitenleven.
Elke woning is voorzien van:
Volledig ingerichte keuken met apparatuur
Badkamers met spiegel, verlichting en doucheschermen
Privézwembad
Parkeerplaats op het perceel
Binnen- en buitenverlichting inbegrepen, met uitzondering van decoratieve lampen
Voorbereiding voor airconditioning
Zomerkamer op het privé-solarium
Het ontwerp met één niveau zorgt voor comfort en toegankelijkheid, terwijl het ruime solarium op het dak een extra ruimte biedt om te ontspannen, gasten te ontvangen en het hele jaar door van de zon te genieten.
Rustige locatie dicht bij golfbanen en de kust
El Jimenado biedt een rustige woonomgeving, omgeven door open landschappen en verschillende gerenommeerde golfresorts. Tegelijkertijd is het goed verbonden met de belangrijkste steden van het Mar Menor-gebied en de Middellandse Zeekust.
Stranden van Mar Menor 18 km
Stranden van de Middellandse Zee 25 km
Roda Golf 9 km
Mar Menor Golf Resort 10 km
La Serena Golf 15 km
Jachthaven van Los Alcazares 18 km
Luchthaven Murcia Corvera 22 km
Luchthaven Alicante 95 km
Stad Cartagena 30 km
Een ideale keuze voor levensstijl en investering
Dankzij hun moderne ontwerp, privacy en uitstekende locatie zijn deze villa's perfect voor mensen die op zoek zijn naar een rustige woning in de buurt van golfbanen en de zee, maar ook voor kopers die op zoek zijn naar een verhuurinvestering met een hoog potentieel in de regio Murcia.
Neem vandaag nog contact met ons op voor meer informatie of om een bezichtiging te regelen van deze prachtige nieuwbouwwilla's in El Jimenado.