VAKRE LEILIGHETER MED HAVUTSIKNING I LA MANGA
Denne urbanisasjonen ligger i det største ekspansjonsområdet i La Manga.
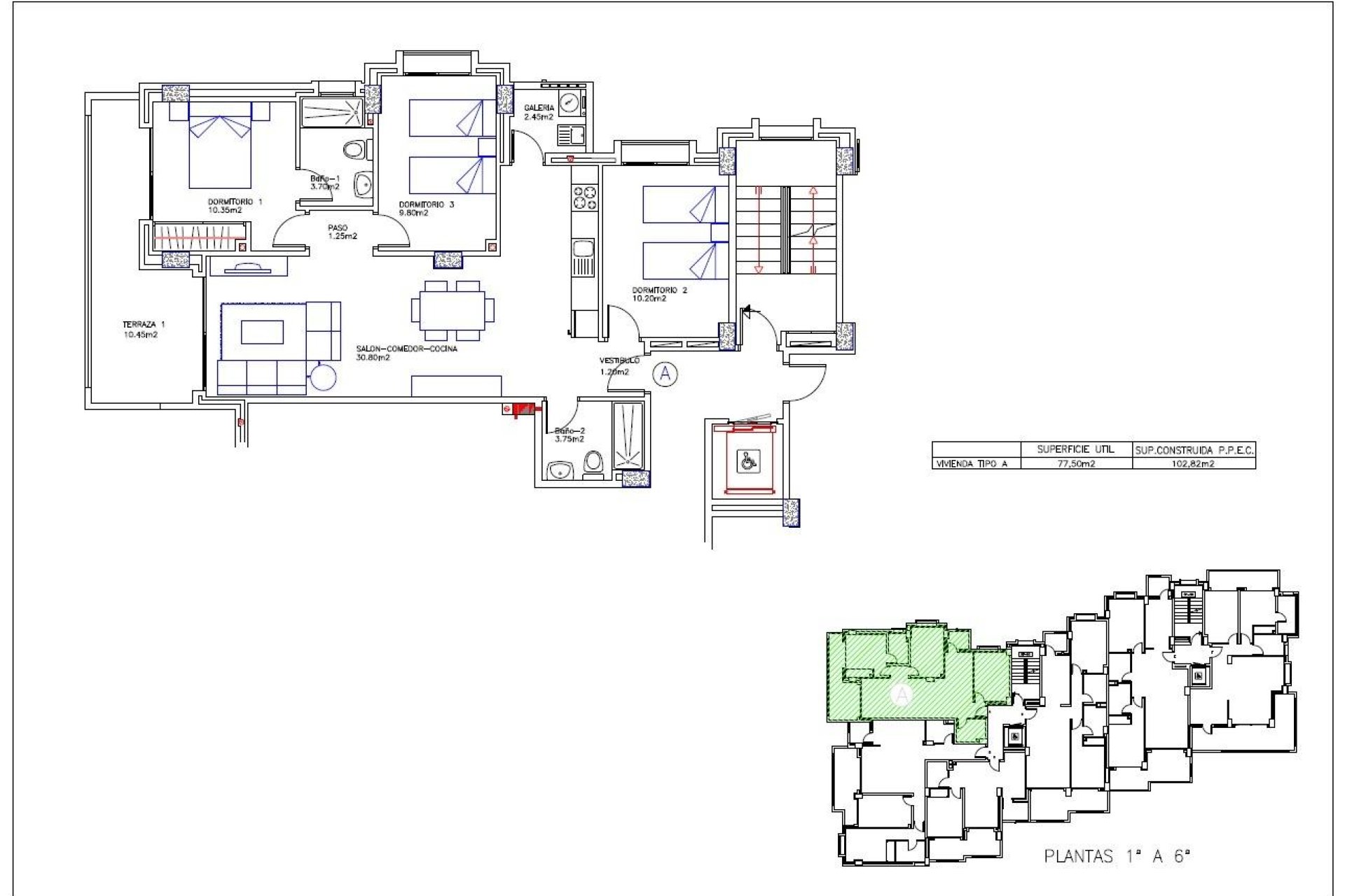
I denne nye urbanisasjonen er boligene designet for å dra nytte av hvert hjørne av huset, samt omsorgen i valg av materialer og deres design.
Leiligheter med pansret inngangsdør og dører lakkert i hvitt med rustfrie beslag.
Hvite, monoblokk persienner og doble vinduer med luftkammer.
På hovedsoverommet innebygd garderobe med skyvedører, med skillehylle i mesaninen, bar og kommode med tre skuffer.
Kjøkken med høye og lave møbler, i hvitt håndtak av gola-type, enkel vask med avløp, keramisk platetopp, elektrisk stekeovn og avtrekkshette.
Forhåndsinstallasjon av luftkondisjonering (kulde og varme) gjennom ledninger med regulering av rom.
La Manga del Mar Menor er en naturlig stripe med land omgitt av to hav, Mar Menor og Middelhavet. Til denne sjeldenheten kan du legge til flere fritids- og fritidsalternativer, restauranter, supermarkeder, medisinske sentre, apotek, nautiske sportssentre, golfbaner.
La Manga ligger på nordkysten av Costa Calida og er et populært feriemål for turister. Den smale landstripen som skiller den varme lagunen og det kaldere havet har et unikt mikroklima. Det er et av de mest eksotiske områdene i Spania.
Corvera flyplass ligger ca. 1 times kjøring unna og Alicante flyplass ca. 2 timer unna.