Apartment. Nybygg Hondón de las Nieves. Alicante

ref: N-35792
175.000€

Apartment. Nybygg Hondón de las Nieves. Alicante

Oversikt

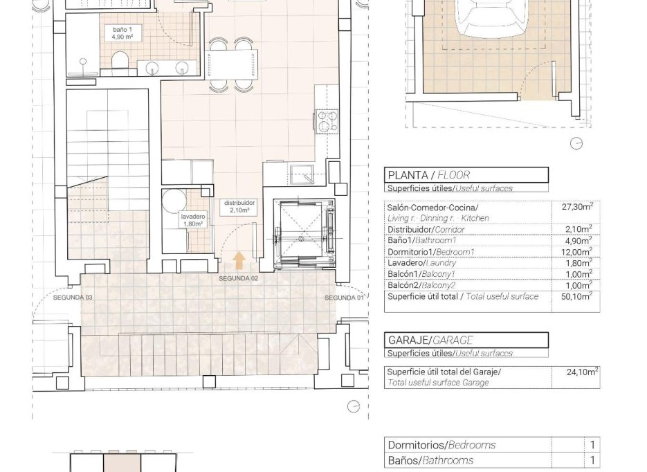
  • meter 56m2
  • Soverom 1
  • Baderom 1
Soverom: 1
Baderom: 1
Inne: 56m2
Elevator/Lift
Number of Parking Spaces: 1
Near Schools
Key Ready
Air Conditioning: Pre-Installed
Double Bedrooms: 1
Location: Rural
Beach: 37000 Meters
Parking - Space
Terrace: 2 Msq.
Useable Build Space: 48 Msq.

Beskrivelse

Plassering

Kontakt oss Foreta en forespørsel

Responsable del tratamiento: Spanish Homes Link, Finalidad del tratamiento: Gestión y control de los servicios ofrecidos a través de la página Web de Servicios inmobiliarios, Envío de información a traves de newsletter y otros, Legitimación: Por consentimiento, Destinatarios: No se cederan los datos, salvo para elaborar contabilidad, Derechos de las personas interesadas: Acceder, rectificar y suprimir los datos, solicitar la portabilidad de los mismos, oponerse altratamiento y solicitar la limitación de éste, Procedencia de los datos: El Propio interesado, Información Adicional: Puede consultarse la información adicional y detallada sobre protección de datos Aquí.
WhatsApp