Moderne tomannsboliger ved Santa Rosalía Lake and Life Resort - en ny standard for middelhavsluksus
Moderne design inspirert av Middelhavet
Oppdag disse eksklusive nye tomannsboligene i det prestisjetunge Santa Rosalía Lake and Life Resort, et unikt boligområde på Costa Cálida. Disse villaene er inspirert av middelhavsarkitektur og kombinerer rene linjer, naturlig lys og moderne komfort for å skape et harmonisk og elegant bomiljø. Hver villa er designet for å gi en perfekt balanse mellom luksus og avslapning, noe som gjør den ideell som permanent bolig, feriehus eller investeringsmulighet.
Romslig planløsning og eksklusive overflater
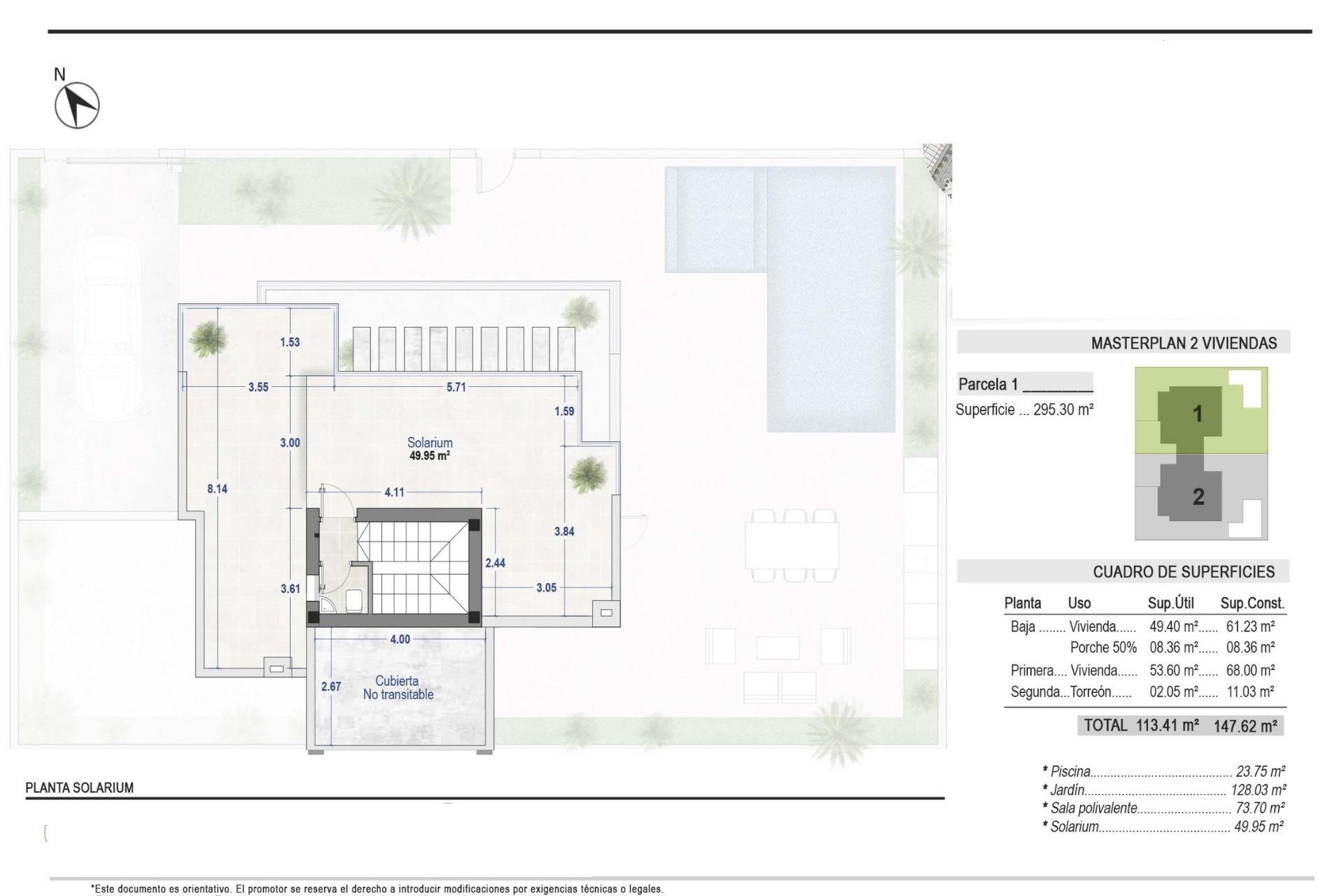
Hver villa har 220 m² boareal fordelt på en kjeller, to hovedetasjer og et solarium på taket, og ligger på en romslig tomt på 295 m². Boligene har 4 soverom og 4 bad (3 med eget bad), og gir god plass til familie og gjester. Det private bassenget med boblebad, store terrasser og solarium på taket med sommerkjøkken og toalett inviterer deg til å nyte regionens eksepsjonelle klima hele året.
Premium-spesifikasjoner inkluderer:
Fullt utstyrt kjøkken med Bosch-apparater
Bad med møbler, speil, dusjvegger og håndklevarmere
Pansret inngangsdør og motorisert inngangsport for kjøretøy
LED-spotlights i hele interiøret og eksteriøret
Kanalisert klimaanlegg (installert i begge etasjer)
Privat basseng med boblebad
2 solcellepaneler for energieffektivitet
Sommerkjøkken i hagen
Underjordisk nivå med engelsk uteplass for naturlig lys og ventilasjon
Resort-stil boende i Santa Rosalía
Santa Rosalía Lake and Life Resort er et privat, inngjerdet boligområde med 24-timers sikkerhet, designet rundt imponerende 126 000 m² grøntområder. Beboerne kan nyte tur- og sykkelstier, idrettsanlegg, paddle- og tennisbaner, minigolf, hager, hundeparker og fritidsområder. Klubbhuset og resortets midtpunkt – en fantastisk 17 000 m² stor, krystallklar lagune omgitt av hvite sandstrender og palmer – tilbyr en ekte karibisk inspirert livsstil. Lagunen har til og med to øyer, den ene med egen bar, og flere strandbarer for avslappet bespisning.
Førsteklasses beliggenhet på Costa Cálida
Bebyggelsen har en sentral beliggenhet i feriestedet, nær lagunen og strandklubben. Den ligger mindre enn 4 km fra Los Alcázares-stranden, 15 minutter fra Cartagena og bare 22 km fra Murcia internasjonale lufthavn. Golfentusiaster finner flere topprangerte baner innen kort kjøretur, mens lokale marinaer, restauranter og shoppingområder fullfører det livlige livsstilstilbudet.
Din eksklusive middelhavsferie venter
Opplev den perfekte kombinasjonen av luksus, komfort og velvære i hjertet av Costa Cálida.
Kontakt oss i dag for å avtale et besøk og oppdag din drømmevilla på Santa Rosalía Lake and Life Resort.