Nybygde leiligheter i Torrevieja, bare 600 meter fra Playa del Cura-stranden
Førsteklasses beliggenhet i hjertet av Torrevieja
Oppdag disse splitter nye leilighetene og penthouse-leilighetene i et av de mest ettertraktede områdene i Torrevieja, bare 600 meter fra Playa del Cura-stranden og 400 meter fra strandpromenaden. Dette livlige nabolaget ligger i sentrum av byen og tilbyr alle nødvendige fasiliteter innen gangavstand, inkludert supermarkeder, butikker, restauranter, kafeer og offentlig transport. Torrevieja er en kjent kystby på Costa Blanca, kjent for sitt milde middelhavsklima, livlige atmosfære og helårlige livsstil ved sjøen.
Moderne leiligheter med romslig planløsning
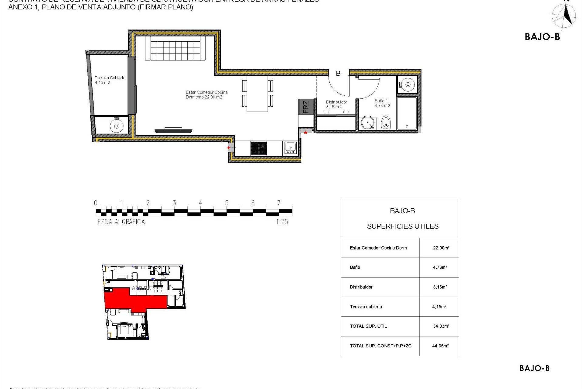
Dette eksklusive nye prosjektet består av bare 14 leiligheter og penthouse-leiligheter, inkludert studioer og 1- eller 2-roms leiligheter, designet for å tilby komfort, funksjonalitet og moderne stil. Alle boligene har et åpent kjøkken som er koblet til stue-spisestuen, utstyrt med hvitevarer, noe som skaper lyse og innbydende interiører. Soverommene har innebygde garderober, og badene er fullt utstyrt med møbler, speil, gulvvarme og dusjvegger.
Kvalitetsfinish og energieffektive funksjoner
Leilighetene er bygget med materialer av høy kvalitet og med stort fokus på energieffektivitet. De utvendige aluminiumsvinduene har termisk isolasjon og doble vinduer for varme- og lydisolering. Motoriserte persienner gir ekstra komfort og sikkerhet. Hver bolig har forhåndsinstallert klimaanlegg og kanalisert oppvarming, forsterkede inngangsdører, belysningspakke og hvitlakkerte innerdører. Varmt vann produseres av et aerotermisk system, som reduserer energiforbruket og forbedrer bærekraften.
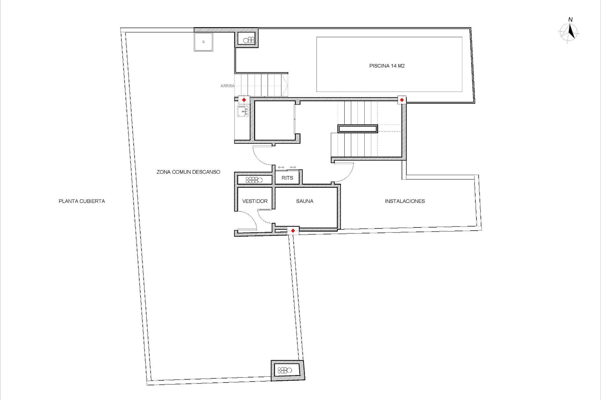
Solarium på taket med felles svømmebasseng
Beboerne kan nyte et eksklusivt solarium på taket med felles svømmebasseng, grill, badstue og solterrasse med solsenger, tilgjengelig med heis eller trapper. Dette private området er perfekt for å slappe av, sole seg og nyte panoramautsikten over byen. Det tilbyr et fredelig tilfluktssted over de travle gatene i Torrevieja og gir prosjektet en betydelig merverdi.
Livsstil og omgivelser i Torrevieja
Torrevieja er kjent for sin lange kystlinje, sandstrender og ikoniske saltsletter. Naturparken Lagunas de La Mata y Torrevieja ligger omtrent 5 km unna og tilbyr turstier og unike landskap. Flere golfbaner, som Villamartin Golf og Las Colinas Golf, ligger mellom 12 og 18 km unna. Marinaen og havnen i Torrevieja ligger omtrent 1 km unna. Alicante lufthavn ligger omtrent 45 km unna, og Murcia internasjonale lufthavn ligger omtrent 65 km unna, begge med gode forbindelser til Europa.
Ditt hjem ved kysten venter
Ikke gå glipp av denne muligheten til å kjøpe en moderne, nybygd leilighet nær stranden i Torrevieja. Kontakt oss i dag for mer informasjon eller for å avtale en privat visning.