Luksuriøs nybygget villa med havutsikt i San Jaime, Benissa
Eksklusiv bolig i en førsteklasses beliggenhet på Costa Blanca
Denne eksepsjonelle nybyggede villaen ligger i det prestisjetunge San Jaime-området i Benissa, og tilbyr havutsikt, privatliv og moderne middelhavsdesign bare 2 km fra stranden. Eiendommen ligger i en rolig blindvei og garanterer ro, samtidig som den ligger nær viktige tjenester og fritidsfasiliteter på den nordlige Costa Blanca.
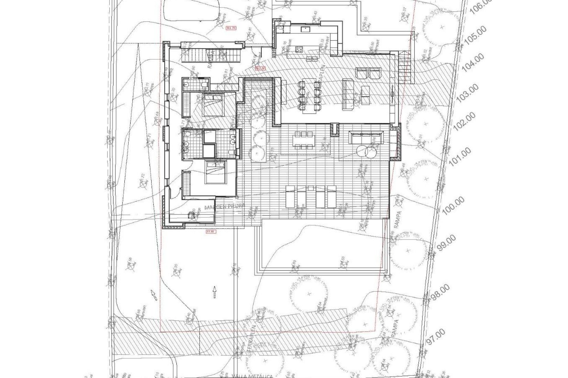
San Jaime er et av de mest ettertraktede boligområdene i Benissa Costa, kjent for sine elegante villaer, grønne omgivelser og nærhet til golfbaner, strender og sjarmerende kystbyer. Villaen ligger på en romslig tomt på 1021 m2 med et totalt bebygget areal på 351 m2 og er for tiden under bygging, med strukturen ferdigstilt.
Gjennomtenkt design over tre etasjer
Denne moderne villaen er fordelt på tre nøye planlagte etasjer, som kombinerer funksjonalitet med raffinert estetikk.
Inngangsetasjen har en privat garasje, vaskerom og teknisk rom, slik at praktiske rom er diskret integrert i den generelle designen.
På hovedetasjen er den åpne stuen og spisestuen sømløst forbundet med et fullt utstyrt kjøkken, noe som skaper en lys og innbydende atmosfære som er ideell for hverdagsliv og underholdning. Denne etasjen har også to romslige soverom, hvert med eget bad.
Uteplassen og det private svømmebassenget utvider boarealet og tilbyr en ideell setting for å slappe av, spise og nyte middelhavsklimaet med vakker havutsikt.
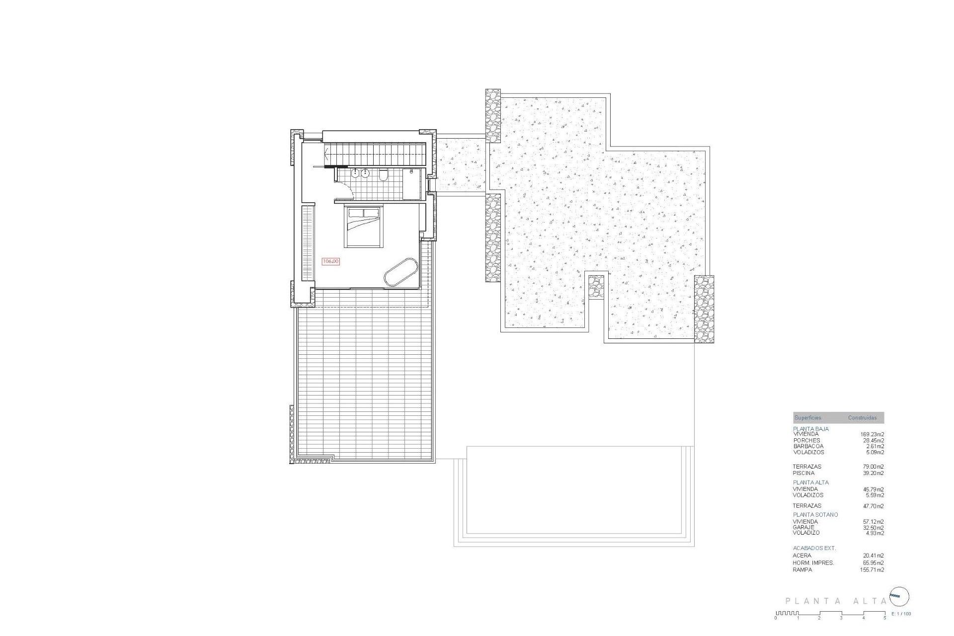
Øverste etasje er dedikert til master suite, komplett med eget bad og direkte tilgang til en stor åpen terrasse hvor du kan nyte panoramautsikt og fredelige solnedganger.
Førsteklasses spesifikasjoner og moderne komfort
Villaen leveres med høykvalitets finish og avanserte systemer for å sikre maksimal komfort og effektivitet, inkludert:
Fullt utstyrt kjøkken med hvitevarer
Designer-bad med møbler
Elektriske persienner
Videointercom og alarmsystem
Aerotermisk system for varmt vann og gulvvarme
Fullt installert kanalisert klimaanlegg
Førsteklasses beliggenhet nær golf, strender og tjenester
Eiendommen ligger ved siden av Club de Golf Ifach og nær det populære supermarkedet Pepe La Sal. Kystlinjen og buktene i Benissa Costa ligger bare 2 km unna.
Avstander til viktige severdigheter
Strand 2 km
Moraira 5 km
Calpe 8 km
Club de Golf Ifach 0,5 km
Alicante lufthavn 80 km
Valencia lufthavn 110 km
Sikre deg din drømmevilla i Benissa Costa
Denne enestående villaen kombinerer moderne arkitektur, havutsikt og en privilegert beliggenhet i San Jaime. Kontakt oss i dag for mer informasjon eller for å avtale en privat visning av denne eksklusive nybyggede eiendommen i Benissa.