Nybygget luksusvilla med havutsikt i La Alberca Polop
Moderne design i fredelige fjellomgivelser
Denne eksepsjonelle nybyggede villaen ligger i La Alberca, et rolig boligområde i fjellene i Polop. Omgitt av skog og natur, tilbyr eiendommen panoramautsikt over Middelhavet, fjellene og den historiske byen Polop. Villaen er designet med vertikal arkitektonisk eleganse og kombinerer privatliv, funksjonalitet og sømløs innendørs og utendørs livsstil.
Polop er en sjarmerende landsby på Costa Blanca, kjent for sin tradisjonelle atmosfære og naturlige skjønnhet. Villaen ligger i nærheten av alle tjenester i La Nucia, inkludert butikker, restauranter, idrettsanlegg og skoler. Strendene og livlige kystbyer som Benidorm og Altea ligger bare 15 minutter unna.
Gjennomtenkt utforming fordelt på tre etasjer
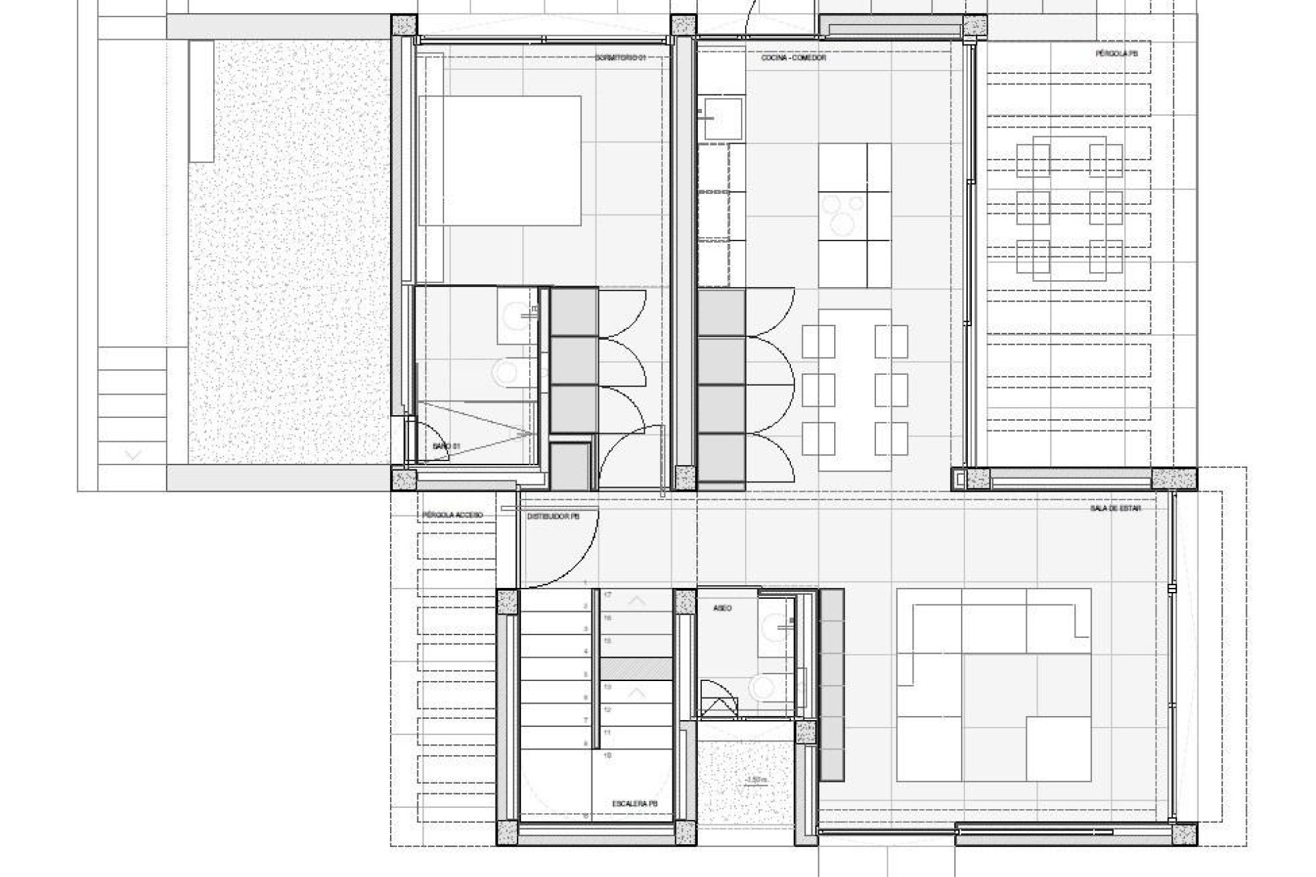
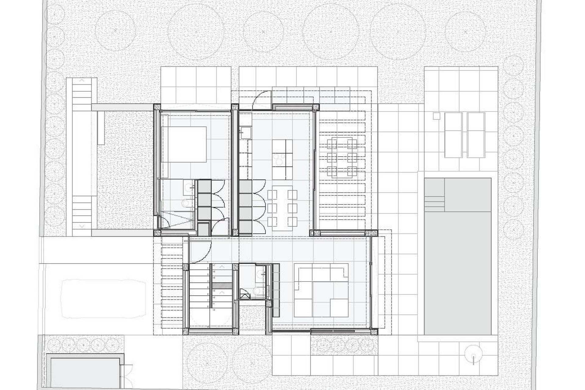
Hovedetasjen ønsker deg velkommen med en entré med innebygd garderobe og gjestetoalett. Denne etasjen har ett soverom med eget bad og vinduer fra gulv til tak som kan åpnes opp mot en privat sideterrasse. Den lyse, åpne stuen og spisestuen har direkte tilgang til en pergola-overbygd terrasse og det private saltvannsbassenget, noe som skaper en harmonisk livsstil både innendørs og utendørs.
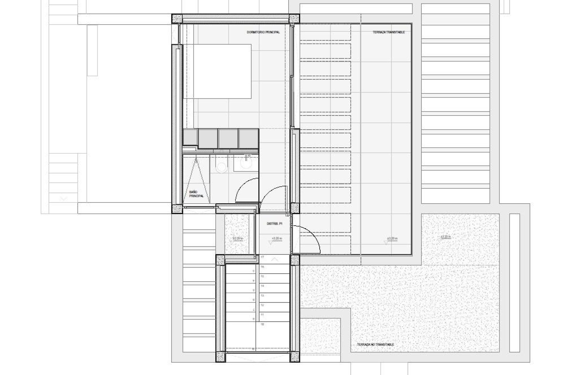
Øverste etasje er dedikert utelukkende til master suite. Dette private nivået tilbyr et soverom med eget bad og tilgang til en spektakulær 40 m2 terrasse og fantastisk panoramautsikt over havet og fjellene, noe som sikrer maksimal privatliv og komfort.
Kjelleren har to ekstra soverom med store vinduer med utsikt over en vakkert designet forsenket gårdsplass som fyller rommet med naturlig lys. Et felles bad, fullt utstyrt vaskerom med Haier-apparater og to romslige tekniske rom og oppbevaringsrom fullfører denne etasjen.
Førsteklasses funksjoner og energieffektivitet
Villaen har høykvalitets finish og avanserte systemer, som for eksempel:
Sentral kjøkkenøy med integrerte BOSCH-apparater
Benkeplater i naturstein innendørs og utendørs
Panoramavinduer med solbeskyttet forsterket glass
Mitsubishi aerotermisk klimaanlegg
Forhåndsinstallert gulvvarme
Energieffektivitetsklasse A
Forhåndsinstallert for smarthussystem
Privat parkering for to biler
Den anlagte middelhavshagen med automatisk vanning og en elegant gårdsplass på lavere nivå forbedrer privatlivet og avslapningen. Taket er forberedt for installasjon av solcellepaneler.
Utmerket beliggenhet og avstander
Polop sentrum 2 km
La Nucia 4 km
Benidorm-strendene 12 km
Altea 10 km
Villaitana Golf 14 km
Alicante lufthavn 65 km
Oppdag ditt private fristed i Polop
Denne moderne villaen med havutsikt tilbyr design, privatliv og komfort i en av de mest attraktive naturlige omgivelsene på Costa Blanca. Kontakt oss i dag for å avtale en privat visning og sikre deg ditt nye hjem i La Alberca Polop.