Villa. New Build Los Alcazares. Murcia

ref: N-72520
361.500€

Villa. New Build Los Alcazares. Murcia

Overview

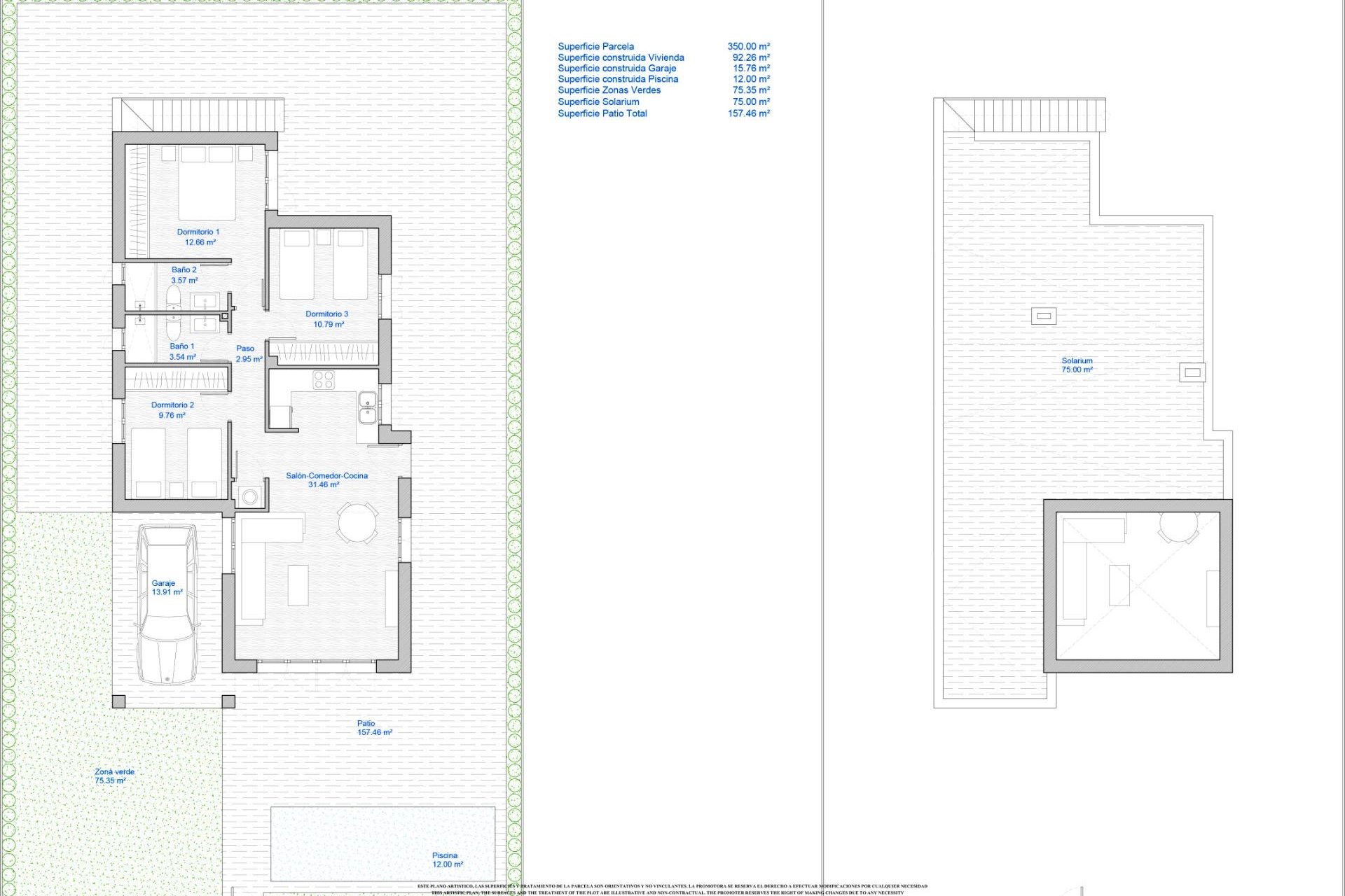
  • meters 108m2
  • Plot 350m2
  • Bedrooms 3
  • Bathrooms 2
Bedrooms: 3
Bathrooms: 2
Built: 108m2
Plot: 350m2
Solarium: Yes
Number of Parking Spaces: 1
Near Commercial Center
Near Bus Route
Double Bedrooms: 3
Useable Build Space: 95 Msq.
Garden
Location: Coastal
Air Conditioning: Pre-Installed
Near Golf / Golf Resort Property
Beach: 1000 Meters
Terrace: 105 Msq.
Parking - Space
Gated

Description

Location

Contact us Make an enquiry

Responsable del tratamiento: Spanish Homes Link, Finalidad del tratamiento: Gestión y control de los servicios ofrecidos a través de la página Web de Servicios inmobiliarios, Envío de información a traves de newsletter y otros, Legitimación: Por consentimiento, Destinatarios: No se cederan los datos, salvo para elaborar contabilidad, Derechos de las personas interesadas: Acceder, rectificar y suprimir los datos, solicitar la portabilidad de los mismos, oponerse altratamiento y solicitar la limitación de éste, Procedencia de los datos: El Propio interesado, Información Adicional: Puede consultarse la información adicional y detallada sobre protección de datos Aquí.
WhatsApp